搜索
搜索
导航
首页
深圳
东莞
资讯
站内搜索
当前位置:
首页
深圳
横岗
正文
在售
龙岗大运中心《启迪U公馆》16号线大运北地铁口,精装现房(阜南小产权房怎么改造)
已开盘
物业类型
主力户型
在线咨询
基本信息
楼盘特色:
装修情况:
建筑类别:
楼盘简介
深圳
龙岗大运小产权房《
启迪
?U公馆》
全新面世 盛世开启
总占地面积:19.27万m2
总建筑面积:83万m2
大运新城?科创菁英?智能臻装空间
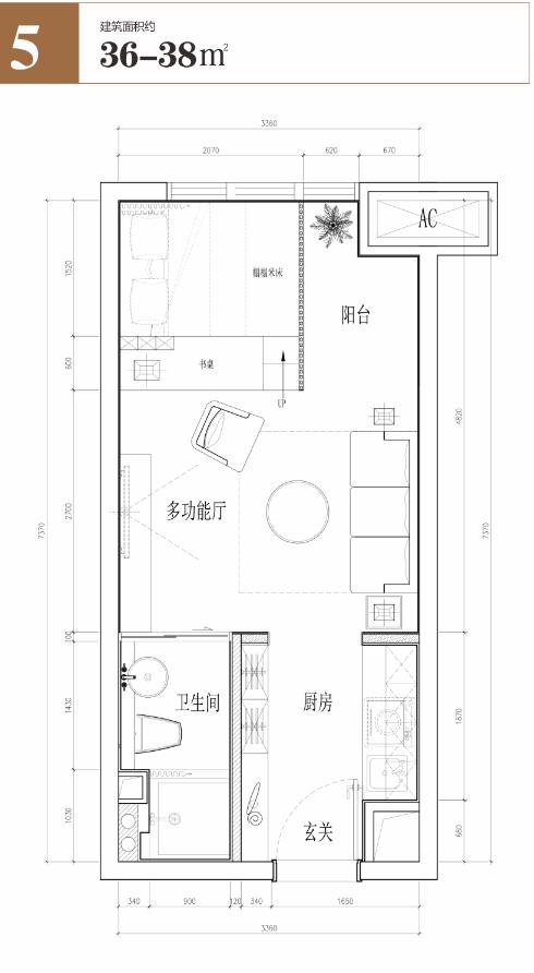
约36-38㎡恒久资产
总价1字头现楼 即买即享即收益
项目在售:5B栋
交付标准:精装(送软装)
在售产品:平层
在售户型:36m2 ~38m2
均价:32000元/m2
总价:110万-130万
付款方式:一次性或首付5成,分期3~5年
交楼时间:现楼
电梯品牌:蒂森克虏伯
楼体高度:88.8米
梯数比:4梯24户
开发商:深圳龙岗区启迪协信科技园发展有限公司
物业公司:重庆天娇物业管理服务有限公司
物业费:9元/月/m2
水费:3.77元/立方
电费:1.26元/度
项目优势深圳小产权有学位:
大运核心新城 小户型低总价
与 700米地标摩天高楼为邻,周边住宅均价8万+起,享 30 万㎡顶级商务配套,抢占龙岗核心
深圳国际大学城,产学研发高地,汇聚 10 万高智人才
大运交通枢纽、汇聚4条
地铁
线,无缝接驳5大高速。
一站式商业及文体休闲配套(cocopark 大运场馆 剧院 图书馆)
深圳分期首付款较低的小产权房
深圳市华南城小产权房
小产权房怎么注册公司 小产权房子30年后怎么办
启迪
深圳
地铁
在线咨询
为了节省您的时间,请留下您的联系方式和遇到的问题,我们将尽快联系您
提交